language
Flam
Products Fireplace stoves Flam

Flam

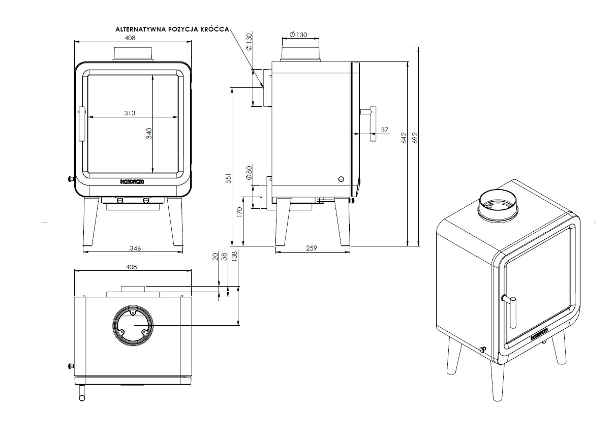
rys_tech_aktual.jpg

Main parameters:
expand roll
63 kg Weight
5 kW Rated output
130 mm Exhaust outlet diameter
82 % Heating efficiency
330 °C Exhaust gas temperature °C
50 m2 Heating area (m2)
692x429x389 mm Dimensions (height, depth, width)
wood of deciduous trees Fuel type
cast-iron, steel Material
A+ Energy efficiency class
2 years Warranty
80 mm External air supply standard – air inlet diameter
Parameters ECODESIGN
expand roll
72 % Seasonal energy efficiency at 13% O2
60 Organic gaseous carbon (OGC) emission at 13% O2
30 Particle matter (PM) emission at 13% O2
112 Nitrogen oxide (NOx) emission at 13% O2
875 Carbon Oxide (CO) emission at 13% O2
Additional characteristic:
expand roll
External air supply inlet (CDP) – External air supply
Using external air supply system (CDP) enables the insert independently from the indoor air inside the building. The CDP system can adjust the effectiveness of the insert and lower the hazardous gases emission into the environment. The insert with the CDP system can be used in buildings with mechanical ventilation. The air flows into the furnace via the air inlet placed at the back of the base of the insert. The air inlet can be installed under or at the back of the base.
Deflector - extends the way fumes travel inside the device, increases heat emissions and heat efficiency of the product.
Double deflector
Afterburning - reduces hazardous gases emission into the environment
Grill
prevents the logs from falling out of the insert
limits the sooth build up on the inside part of the glass
withholds the temperature up to 700 °C
Recuperation - Adapted for homes with recuperation systems

Download:

declaration of performance and conformity energy efficiency class manual mechanical drawing product sheet rating plate technical data
Return

Other products from category: Fireplace stoves

7,6 kW Palestro black 5 kW Alta 7 kW Verdo czarne 7 kW Sora 10 kW Breno

Cookies are used ,on our website for statistical purposes, the statistics of visiting our website and in order to provide correct operation of our website, as well as delivering customised content. Google Analytics software, used for this purpose, saves on the user’s computer a code allowing us for collecting the said data. Click for agree.